Ihre Partner für professionelle Bewehrungsplanung im Bauwesen

Vertrauen Sie auf unser Konstruktionsbüro für hochwertige Bewehrungsplänezu fairen Konditionen.

Ihre Partner für professionelle Bewehrungsplanung im Bauwesen

Vertrauen Sie auf unser Konstruktionsbüro für hochwertige Bewehrungsplänezu fairen Konditionen.

00

Jahre
Erfahrung

Über uns

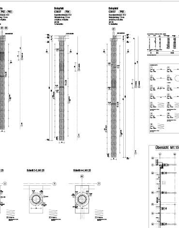
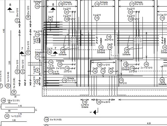
Wir sind ein in Deutschland ansässiges Unternehmen, das sich auf die Erstellung von Schal-und Bewehrungspläne für Gewerbe- und Industriebau spezialisiert hat. Durch unsere enge Zusammenarbeit mit einem renommierten Büro in Rumänien können wir Ihnen effiziente und qualitativ hochwertige Lösungen anbieten.


Unser Hauptaugenmerk liegt auf der Präzision und Genauigkeit in der Planung. Jeder Schritt wird sorgfältig durchdacht, um sicherzustellen, dass die Ausführungspläne den höchsten Standards entsprechen. Dabei setzen wir modernste CAD-Technologien und Software ein, um eine exakte Darstellung der Konstruktionen zu gewährleisten.


Die Zusammenarbeit mit unserem Partnerbüro in Rumänien ermöglicht es uns, flexibel auf Ihre Anforderungen zu reagieren. Durch die Nutzung ihres Fachwissens und ihrer Expertise profitieren wir von einer effektiven Arbeitsweise und können Ihnen zeitnah maßgeschneiderte Lösungen bieten. Dabei spielt es keine Rolle, ob es sich um kleine oder große Projekte handelt – wir stellen sicher, dass jedes Detail berücksichtigt wird.


Unser engagiertes Team besteht aus hochqualifizierten Ingenieuren und CAD-Spezialisten, die über umfangreiche Erfahrung in der Erstellung von Ausführungsplänen verfügen. Wir legen großen Wert auf offene Kommunikation und eine enge Zusammenarbeit mit unseren Kunden, um sicherzustellen, dass wir Ihre Visionen und Anforderungen bestmöglich umsetzen.


Mit unserem Zeichnungsbüro erhalten Sie nicht nur präzise Ausführungspläne, sondern auch eine effiziente und zuverlässige Partnerschaft. Wir stehen Ihnen zur Seite, um Ihre Projekte erfolgreich umzusetzen und Ihnen bei der Realisierung Ihrer Visionen zu helfen.

Rebarteam - Perfektion durch Präzision

Unsere Leistungen

REBARTEAM